Villa Vision
Lo esencial
- Categoría: rynek pierwotny
- Tipo: dom szeregowy
- Dormitorios: 3
- Baños : 2
- Habitaciones totales: 4
- Pisos : 110
- Área : 121 m²
Descripción
-
Descripción:
Es una casa con un diseño lineal y moderno, tanto por dentro como por fuera. Cuenta con una gran ventana delantera que proporciona luz natural prácticamente durante todo el día.
Las casas se distribuyen en dos plantas, en estilo adosado, con escaleras de madera con un acabado lineal sencillo. En el exterior hay un jardín/aparcamiento de 25 m² y un patio en la parte trasera de la casa. También hay una piscina comunitaria.
- Apartamento: Vision es una casa moderna y funcional de doble altura. 1, 2 o incluso 3 dormitorios o espacio abierto.
- Ubicación: Se puede llegar directamente a las ciudades más grandes por la carretera N-332, la autopista A-7 y el aeropuerto está a 5 minutos.
- Externa: La propiedad cuenta con una parcela exterior de 25 m2 con aparcamiento y un patio interior de 6 m2 con piscina común.
- Luz natural: Con una gran ventana delantera que proporciona luz natural a la casa durante todo el día.
- A los alrededores: La propiedad está situada en Monte y Mar, en una zona privilegiada, a solo 5 minutos de las playas más características de la región.
- Utensilios: Materiales de primera calidad, incluyendo un sistema de energía renovable como un calentador de aire.
El Vision tiene una superficie útil de 110 m2, que puede configurarse libremente.
La propiedad puede dividirse en 1, 2 o hasta 3 dormitorios, con una cocina separada o de planta abierta, 1 o 2 baños, o la posibilidad de elegir espacios grandes, abiertos y espaciosos en lugar de dormitorios.
Todas las casas tienen una planta completamente abierta de una planta con una gran ventana que proporciona luz natural al suelo.
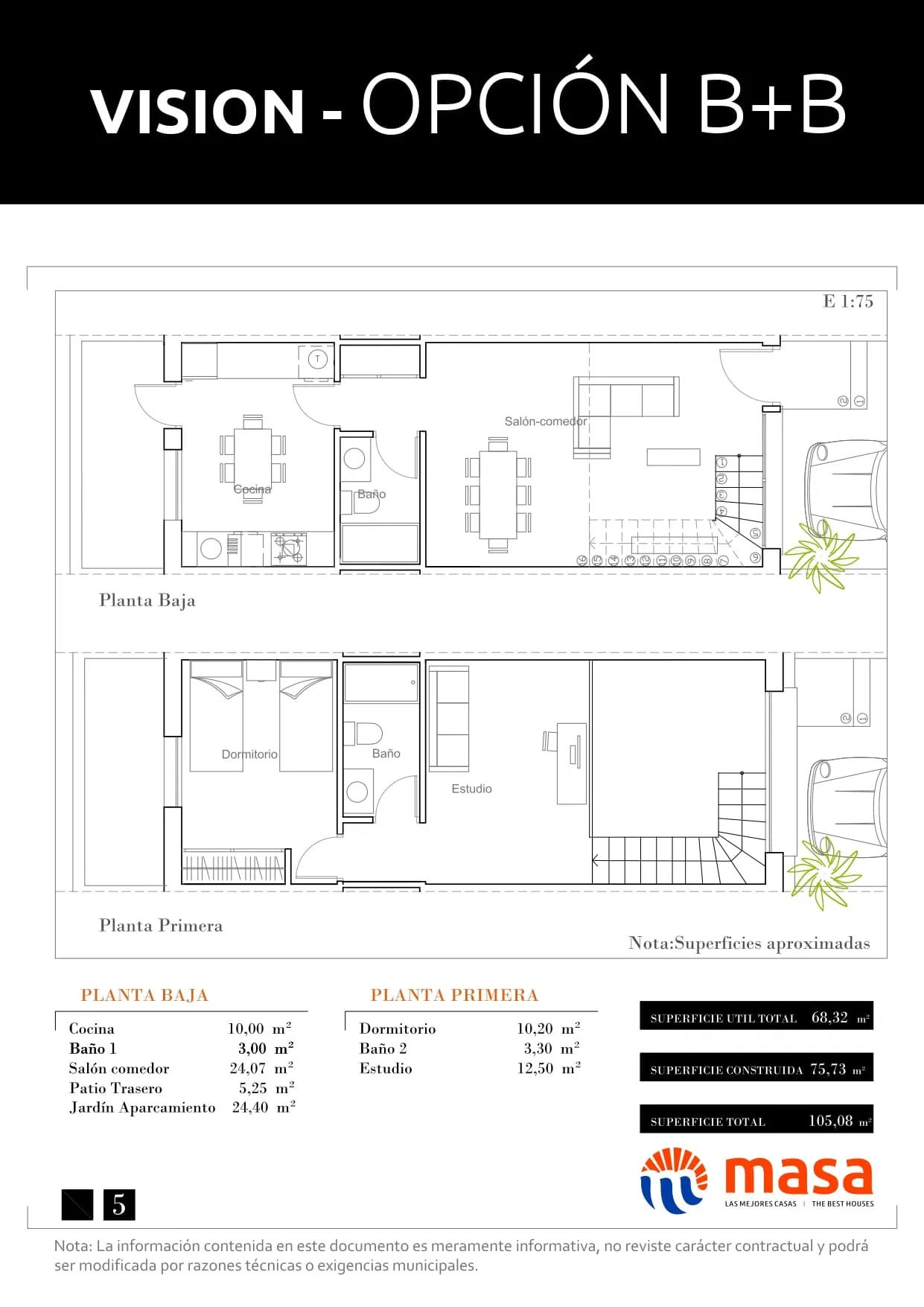
COMBINACIONES DE VIVIENDAS
Vision ofrece la posibilidad de planificar libremente las habitaciones de la casa, según las preferencias de cada cliente; Hay muchas posibilidades de diseño.
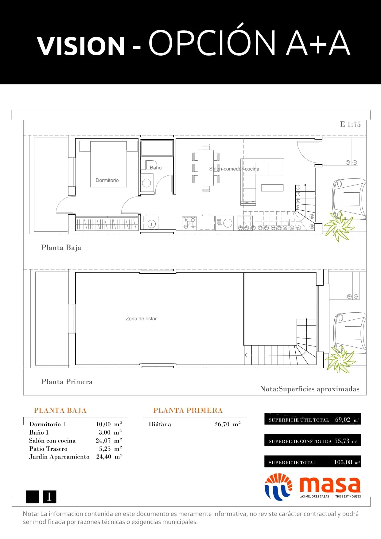
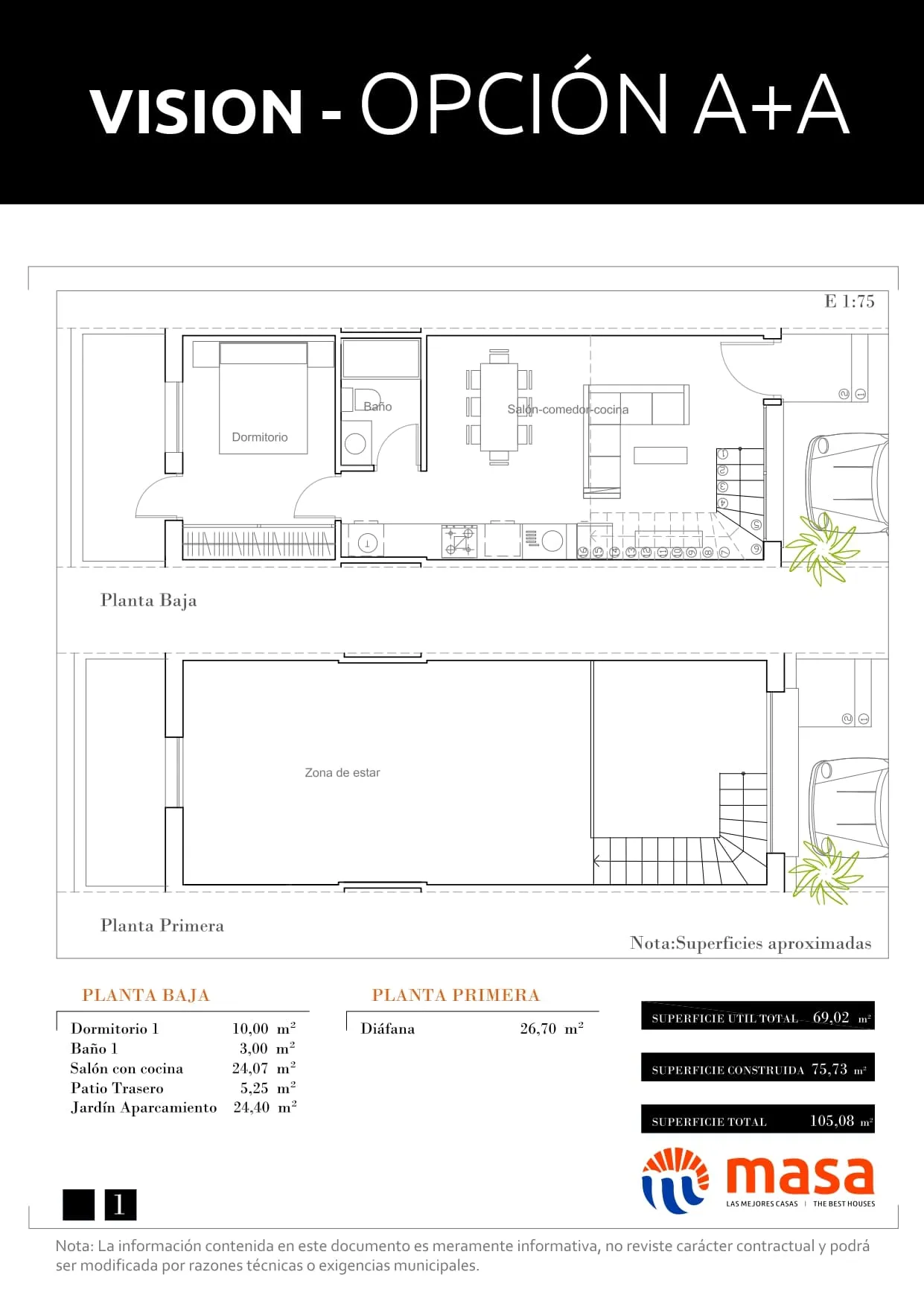
- Opción planta baja A + planta A con 2 dormitorios y 1 baño + planta terminada -1.
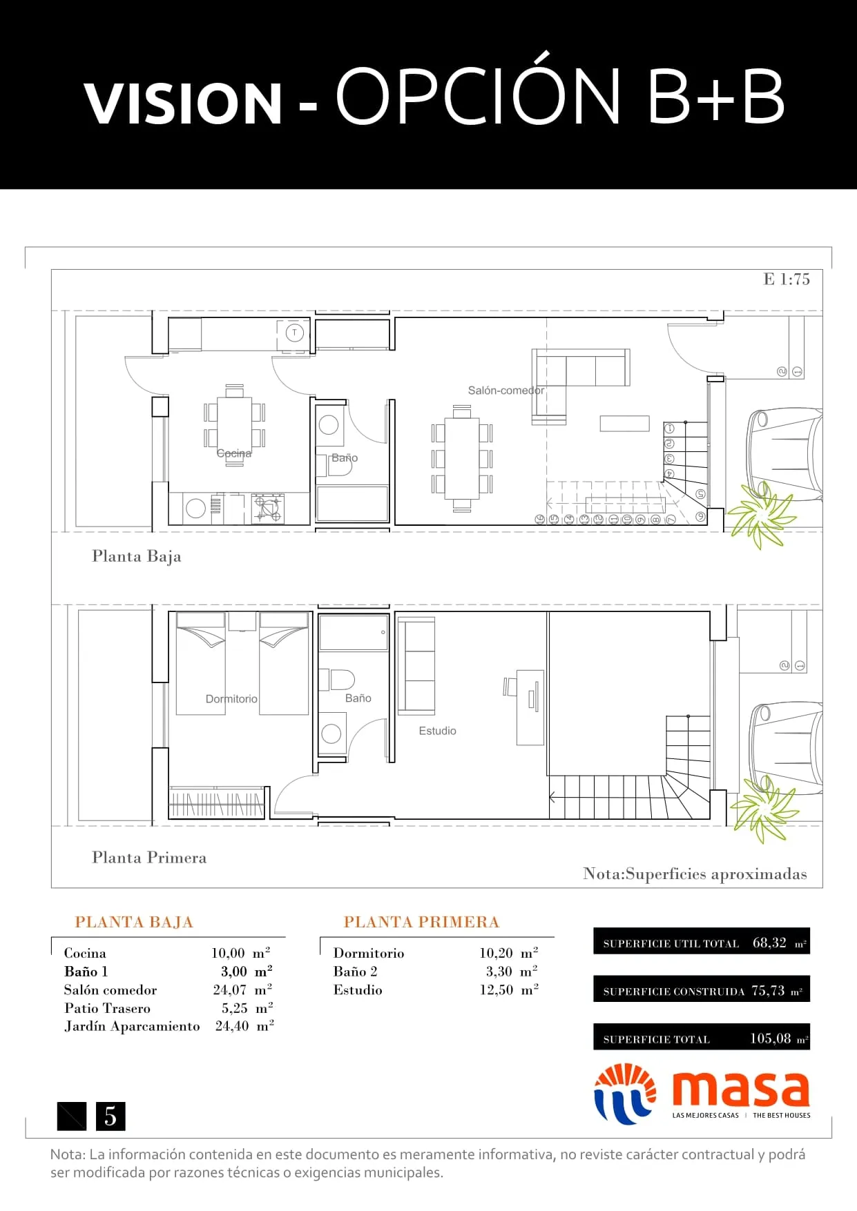
- Opción planta baja A + planta B con 2 dormitorios y 2 baños + planta terminada -1.
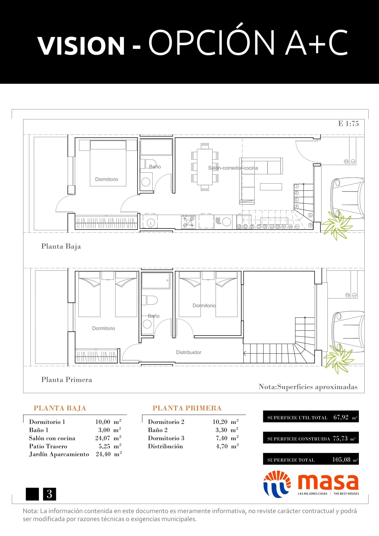
- Opción planta baja A + planta C con 3 dormitorios y 2 baños + planta terminada -1.
- Opción planta baja B + planta B con 1 dormitorio y 2 baños + planta terminada -1.
- Opción planta baja B + planta C con 2 dormitorios y 2 baños + planta terminada -1.
- Opción planta baja B + planta C con 2 dormitorios y 2 baños + sótano acabado.

